Έργα Μελέτη - Κατασκευή
8-Όροφη Οικοδομή Οροφοδιαμερισμάτων (περιοχή Ευελπίδων/Γκύζη)
Αρχιτέκτονες Μηχανικοί:
Μιχαλόπουλος Νίκος
Πολιτικός Μηχανικός:
Μιχαλοπούλου Περσεφόνη
Ηλεκτρολόγος Μηχανικός:
Νενεδάκης Φαίδων-Ιωσήφ
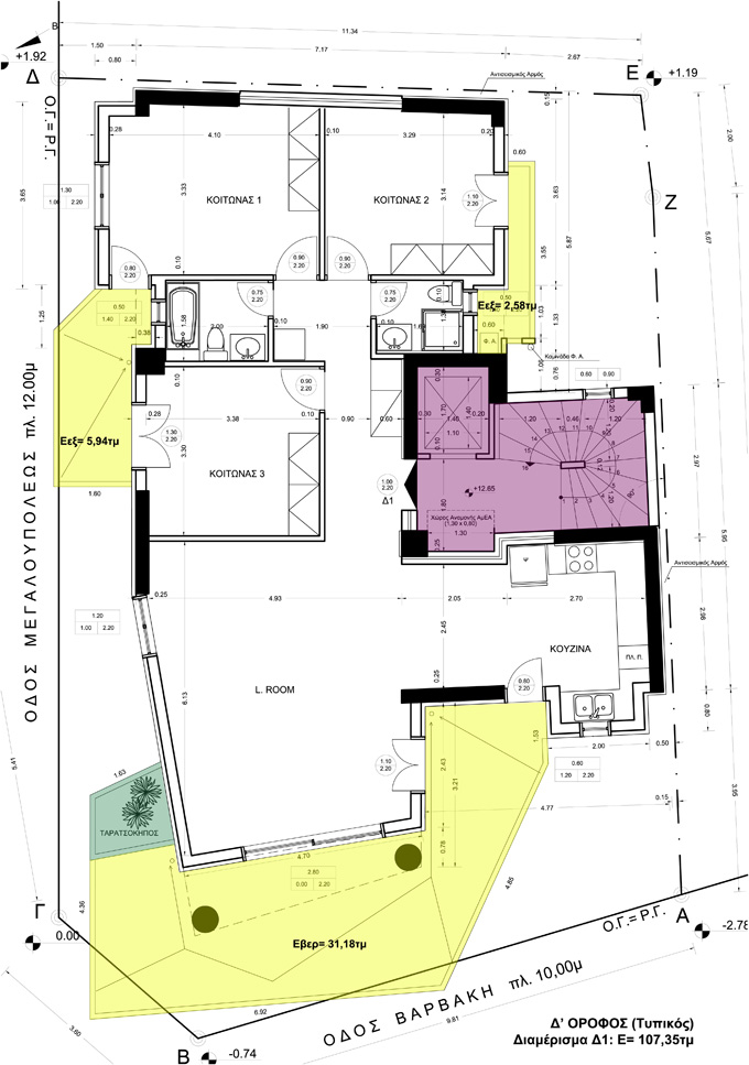
Ανέγερση Νέας 8-Όροφης Οικοδομής Οροφοδιαμερισμάτων σε Γωνιακό Οικόπεδο με ανεμπόδιστη θέα προς Ακρόπολη & Λυκαβητό. Ενεργειακή Κλάση Β+. Όλα τα διαμερίσματα διαθέτουν Ατομικό λέβητα Φυσικού Αερίου για Θέρμανση - Ζερό Νερό Χρήσης, δική τους Αποθήκη & Θέση Στάθμευσης. Τα Διαμερίσματα Διατίθενται προς Πώληση.
