Έργα Μελέτη - Κατασκευή
Μελέτη Κτιρίου Γραφείων Ομοσπονδίας Λεσβιακών Συλλόγων Αττικής (ΟΛΣΑ)
Αρχιτέκτονες Μηχανικοί:
Μιχαλόπουλος Νίκος
Βρεττάκου Γιώτα
Πολιτικός Μηχανικός:
Μιχαλοπούλου Περσεφόνη
Ηλεκτρολόγος Μηχανικός:
Νενεδάκης Φαίδων-Ιωσήφ
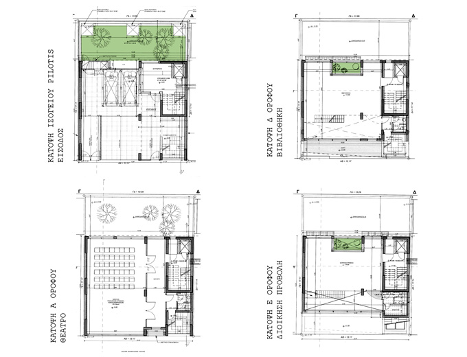
Το κτίριο αποτελείται από 5 ορόφους και pilotis και περιλαμβάνει 4 λειτουργίες (πέραν των χώρων στάθμευσης και των αποθηκών):
1. Αμφιθέατρο - Αίθουσα πολλαπλών χρήσεων
2. Αίθουσες μόνιμων και περιοδικών εκθέσεων
3. Βιβλιοθήκη
4. Γραφεία και χώρους Διοίκησης
Στόχος είναι η δημιουργία ενός Κέντρου Έρευνας του Πολιτισμού και Προβολής των θεμάτων που αφορούν τη Μυτιλήνη (Πνευματικό Κέντρο Μίλτης Παρασκευαΐδης) και να στεγάσει τις Διοικητικές λειτουργίες της Ομοσπονδίας Λεσβιακών Συλλόγων Αττικής (ΟΛΣΑ).
http://www.lesvos-olsa.blogspot.gr
Συνολικό Εμβαδόν Κτιρίου 930 τ.μ. (περίπου)
Συνολικός Όγκος 2800 κ.μ. (περίπου)
1. Αμφιθέατρο - Αίθουσα πολλαπλών χρήσεων
2. Αίθουσες μόνιμων και περιοδικών εκθέσεων
3. Βιβλιοθήκη
4. Γραφεία και χώρους Διοίκησης
Στόχος είναι η δημιουργία ενός Κέντρου Έρευνας του Πολιτισμού και Προβολής των θεμάτων που αφορούν τη Μυτιλήνη (Πνευματικό Κέντρο Μίλτης Παρασκευαΐδης) και να στεγάσει τις Διοικητικές λειτουργίες της Ομοσπονδίας Λεσβιακών Συλλόγων Αττικής (ΟΛΣΑ).
http://www.lesvos-olsa.blogspot.gr
Συνολικό Εμβαδόν Κτιρίου 930 τ.μ. (περίπου)
Συνολικός Όγκος 2800 κ.μ. (περίπου)
